27
$629,900 Sale
Listed 4 hours ago
939 SILVERFOX CRESCENT
· 3
· 2.5
· 3
· 1500 - 2000
Key Facts
Key facts for 939 SILVERFOX CRESCENT
Property Type
Townhome, Row / Townhouse
Parking
Garage: Yes, 3 parking
MLS #
X12448493
Size
1500 - 2000 sqft
Basement
Unfinished, N/A (Unfinished)
Listed on
-
Lot size
-
Tax
-
Days on Market
-
Year Built
-
Maintenance Fee
-
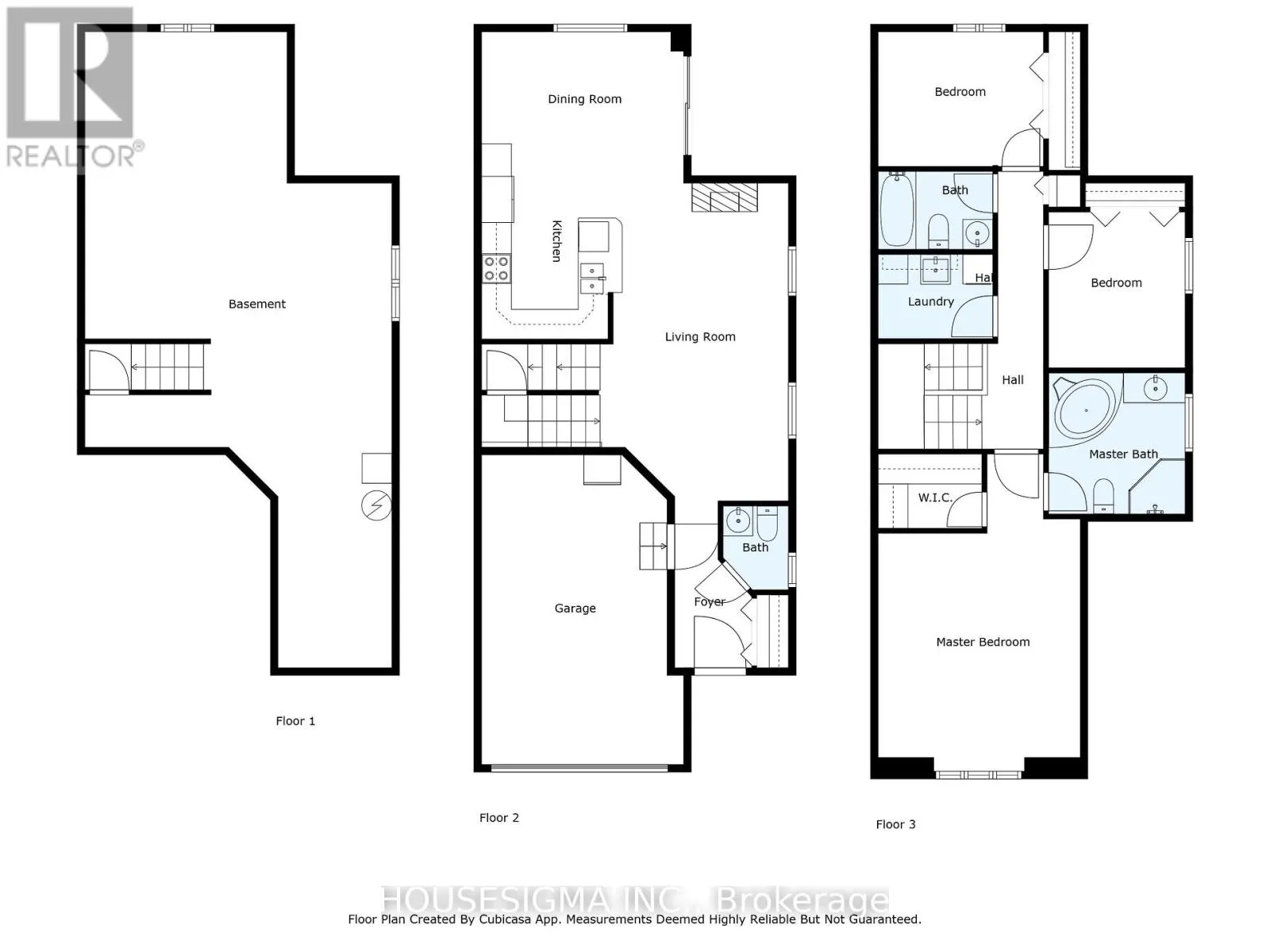
Description
Built in 2016, this beautifully maintained end unit FREEHOLD townhome offers the perfect blend of comfort, privacy, and low-maintenance living with NO CONDO FEES. Set in the sought-after Fox Field community of Northwest London, this home delivers exceptional value in a location thats close to parks,... schools, shopping, and more.Inside, youll find a bright, open-concept main floor designed for everyday living and effortless entertaining. The kitchen overlooks a spacious great room and eat-in dining area, with direct access to a covered porch and large deck, a private outdoor space perfect for summer dinners or quiet mornings with coffee. The fully fenced, professionally landscaped backyard includes a gas line for your BBQ, making it ideal for hosting.Upstairs offers three generously sized bedrooms, including a serene primary retreat with a walk-in closet and a private ensuite. A second-floor laundry room adds convenience and practicality to the layout.The full unfinished basement provides a blank canvas, ready for your personal touchwhether you're envisioning a home gym, rec room, or additional living space.This is a move-in-ready opportunity in one of Londons most desirable neighbourhoods! With the added bonus of being an end unit with no shared walls on one side, more natural light, and a greater sense of space. (id:10452)
Similar Properties (No results)
Room Types
Bathroom
-
Dimensions 2.31 m x 1.57 m
39.04 sqft
Bathroom
-
Dimensions 2.75 m x 2.84 m
84.07 sqft
Bedroom 2
-
Dimensions 2.75 m x 3.14 m
92.95 sqft
Listing courtesy of: HOUSESIGMA INC.
This REALTOR.ca listing content is owned and licensed by REALTOR® members of The Canadian Real Estate Association.